Full House House
Last updated: March 02 2023On this page you can find information on the Tanner family home. Not only information on the house as it was used on the show, including floorplans, but also some facts about the existing building the house on Full House and Fuller House was based upon.
Jeff Franklin, who created both Full House and Fuller House, bought the house in 2016, but sold it in 2020 after his renovation plans fell through. He intended to make the house look exactly like it did on the show. The first change he made to the house was painting the door in the familiar red shade, but the new owners have reportedly changed the color of these doors again.
The new owner of the house did get one piece of show memorabilia. In the backyard, there’s cement tiles with handprints and signatures from the Full House cast.
In episode 190 "All Stood Up" for instance, Stephanie is really nervous, talking to a boy she likes, and she says in a hurried voice that she lives at 1883 Girard Street. And in the episode where Joey finds an old girlfriend, he is talking to her on the phone and tells her to "Come on over. I'm at 1882 Gerrard."
Most confusion however, is the front porch. In episode 180 "DJ's Choice", DJ is on the porch with Nelson, and the number next to the door, is 1892:
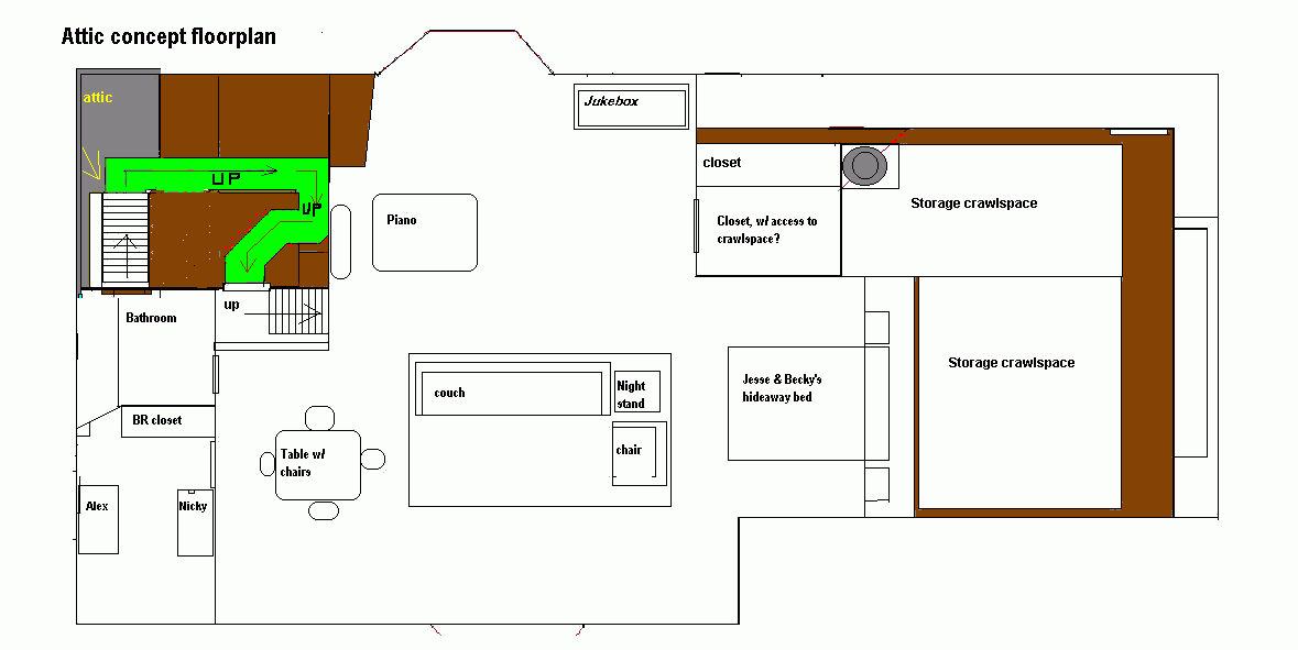
Below you find fan-made floor plans of the Tanner house. Every floor has it's own plan, and there's even one that might explain how two stairways end up at the same hallway upstairs. Not only did he create a 2D floor plan, he also made 3D models of the house. Below you can find all plans and models, sorted by floor.

The real house
For exterior shots on both Full House and Fuller House, a Victorian home in San Francisco was used. It’s a four-bedroom, 3,728-square-foot home. The three-story interior, which was never shown on the show includes a master suite with fireplace on the top level, a walk-in closet, and views of San Francisco Bay.
The house is located in a residential area. Out of respect for the neighbors, who are concerned by the large number of tourists trying to get a glimpse of the house, the exact address will not be disclosed on Full House Forever.
The house on the show

Floor plan of the house on Full House
Created by "Alex Darkland"
You can click the images to view a larger version, which will open in a new tab or window.
Basement / Garage
First Floor (living room and kitchen)
Stairway space
Second floor floor
Attic




















